Draft Your Dream Design with Sunbeam STUDIO

At Sunbeam, we believe in transforming your vision into reality with precise and detailed construction documentation. Whether you’re redesigning a single room or planning a complete home makeover, we take the time to understand your needs and bring them to life with style and functionality.

We use the latest techniques and tools to produce accurate drafts that capture every detail of your concept. From initial sketches to final designs, we ensure every element is planned meticulously, giving you a clear and practical roadmap for your project.

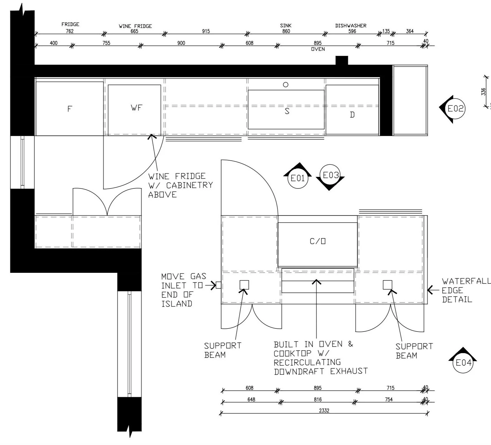
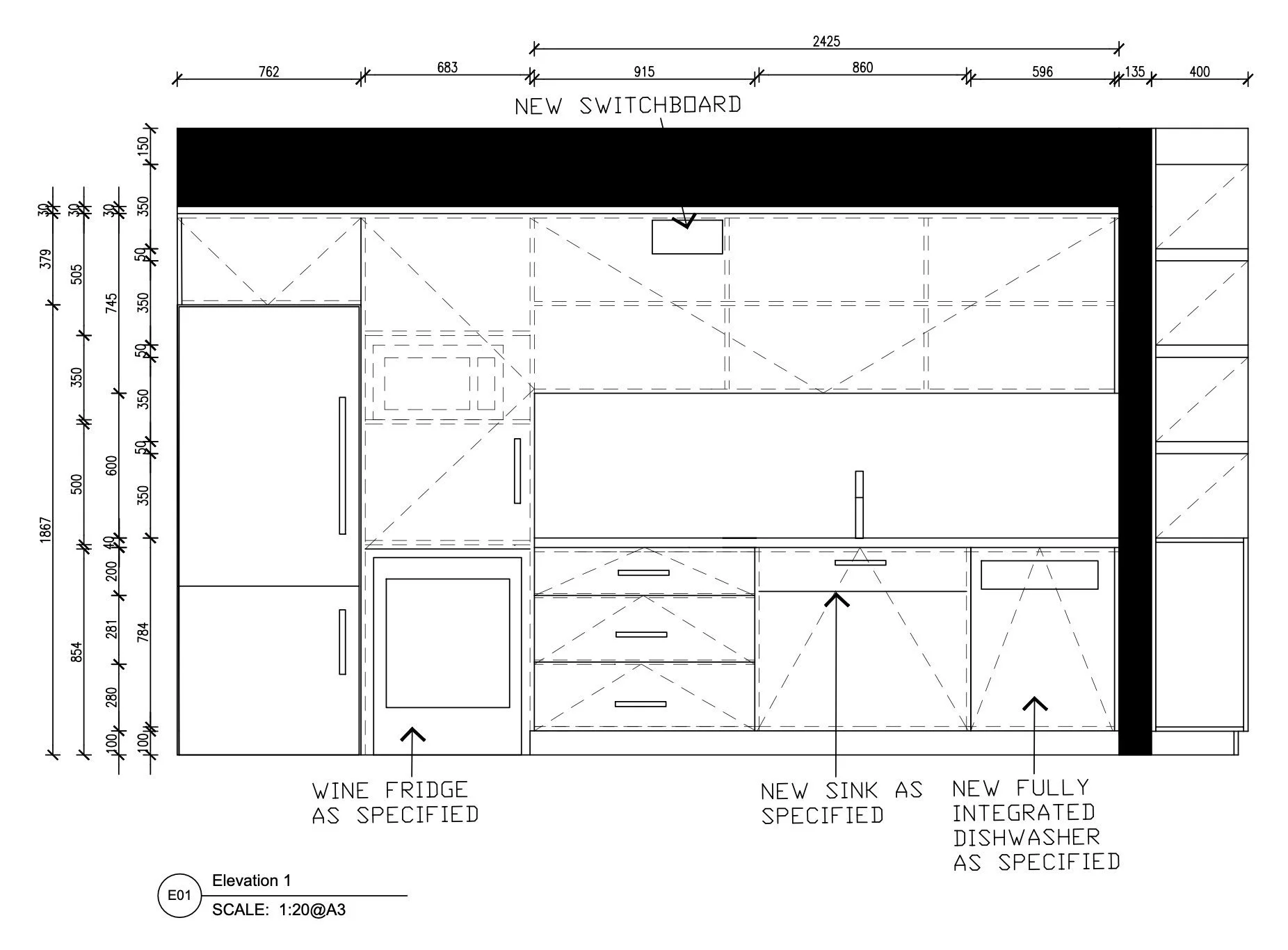
echnical drawing of a residential floor plan created by a professional drafting service
Technical floor plan showcasing precise measurements and structural details

Why WE’RE THE RIGHT FIT

Bespoke Designs: Every draft is tailored to suit your individual style and requirements

Attention to Detail: We ensure every element is carefully considered, from layout to functionality.

Expert Craftsmanship: Our team’s expertise guarantees professional, high-quality results.

Clear Communication: Our team’s expertise guarantees professional, high-quality results.

Get in Touch Today