SERENE SOPHISTICATION, NSW 2066

These clients engaged my services mid-way through their build. They already had planning approval but were struggling to decide on materials, furnishings and fittings. They were also unsure about the direction they wanted to take the design in aesthetically. Through some trial and error - and some design intuition - I finalised a scheme for the clients that they were very happy with. The home was also lacking in storage so I drew up custom joinery solutions for the entry, family room and master bedroom which were well suited to the family’s lifestyle.

Concept vs reality!

Kitchen Concept made by Sunbeam
Kitchen drawers concept by Sunbeam
Sunbeam made the concept into reality
Bathroom Design
Neat Bathroom Sink
Bathroom Design and Mirror with lights
Simple Kitchen Design
Ground floor plan render

What were the final material selections?

  • 5 natural stones

  • 1 ceramic tile

  • 1 mixed media mosaic

  • 1 porcelain tile

  • 1 timber

  • 1 carpet

Outdoor materials

A relaxed, textural material palette emerged, inspired by the surrounding nature to evoke a sense of peacefulness and to further embrace indoor/outdoor living

Ferguson Living & Dining Furnishings

A desire to support local business and achieve a great balance between quality and price meant that Australian-made furniture featured heavily in this project.

Spaces furnished:

  • Formal living area

  • Dining area

  • Media room

  • Master bedroom

  • Children’s bedroom

  • Outdoor entertaining area

Ferguson Family Room Furnishings by Sunbeam

Media Room Joinery

Media Room Joinery Layout

Master Bedroom Joinery

Master Room Joinery Layout

Entry Joinery

Entry Joinery Layout

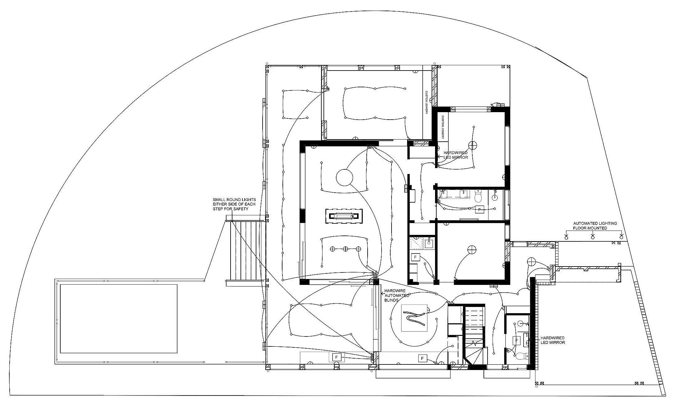
Lighting & Electrical Plan

Ferguson L&E Plan
Next
Next

Playful Postmodern